浅谈主流设计软件的工具整合

2026-03-22 107

        未来设计环节的机械、电气、液压和气动,甚至ERP/PDM/PLM/CAPP/MAS整合到一起是一种趋势.,这种整合不是单纯的软件整合,而是设计流程的大融合,生产管理的一种变革。

        未来的产品设计不再是机械、电气、液压、气动各自独立完成,而是多专业并行、数据交互的协同设计,所有系统在同一数字化平台上开展工作,实现机电液气一体化协同设计,数据统一、高效协同,从源头避免干涉、错误和返工。

        这不是简单软件叠加,而是设计流程重构,设计与管理平台全面打通,实现设计→工艺→制造→采购→服务全链条数据贯通,但至少还需要三到五年深耕,甚至更长的时间,因为整合不是那么简单,先不说远的,就浅谈一下电气与三维机械设计之间的整合。

        从目前已知的需求来看,整合的原因有以下几种情况:


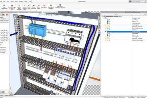
三维布局

原理图设计好以后,后面生产时需要元器件柜内及柜外的布局,元器件能否放得下,前后之间(尤其是门上的元件与柜内元件)会否干涉,元件的布局是否合理(考虑散热与热流动),这些内容在原理图设计时是无法考虑的,准确讲应该是工艺设计的范畴,因此将原理图中的设备快速地布局到整机中,以直观的形式检查设计的合理性,这是当前最多的需求。

布线布管

元器件布置完毕后,一般都会有布线(电气系统)和布管(气动液压系统)的需求, 自动计算管线的长度,便于采购与加工, 一方面是空间的考虑,另一方面是生产的考虑, 从设计阶段就考虑加工、装配、布线、检修的工艺性,避免后期工艺不完善、无法安装、布线困难等情况。

安装板开孔

有些元器件装在门板上(比如按钮,指示灯,指示仪表),有些元器件装在侧板或顶板(如风扇),有些元器件装在安装板上,布局完成后,底板上需要多少孔,多大的孔,这些都需要考虑,也就是说最好能自动生成安装板打孔图。

与自动裁线机及加工设备的衔接

自动生成的线缆列表,能够直接提供给自动裁线机切线、剥线、压端子、打线号;将打孔图直接提供给数控加工中心加工;将标签数据提供给标签打印机。这些自动化的设备可以大大提高加工的效率,减少材料浪费,这样的应用会越来越多。

与生产装配工艺的衔接

设计数据直接对接生产,原理图、BOM 表、端子表、电缆表、接线图、开孔图等设计数据准确传递到生产、装配、调试环节,设计与生产使用同一套数据源,统一元器件库、符号库、模板、报表格式,保证图纸、元器件、接线、线号、端子排布、线缆布线与现场施工一致,减少人工转录错误。

数字化样机

实现产品全三维数字化设计,完成整机、结构、电气、管路的三维建模,形成完整的数字化样机,机械、电气、液压等专业一体化并行设计,数据统一、贯通、实时联动,缩短研发周期,降低试制成本,提高设计效率和产品可靠性及标准化水平,支持与 ERP、MES、生产加工设备对接,实现设计数据直接驱动生产,实现设计→工艺→制造→服务全链条数据贯通,提升整体自动化水平。

        很多软件公司也都注意到电气设计与机械设计整合的趋势,这些软件公司有的是传统的机械设计软件公司,有的是传统的电气设计软件公司,他们都在向对方的领域伸出触角,期望在未来的市场竞争中分得一杯羹。


        我们罗列了一些主流的机械三维和电气设计软件的公司:

1、美国参数技术公司PTC:

PLM软件(WindChill),机械设计软件(Pro/E),布线需要两个模块Routed Systems Designer,Pro/ENGINEER Cabling,WindChill 管数据与流程, RSD做线束设计(Routed Systems Designer)即Creo Schematics可以做简单的电气逻辑,Cabling 做三维布线,三者原生打通,数据保持一致性,但电气设计功能较弱,只围绕电气设计里的 “物理实现层”,缺少完整的从上到下的电气逻辑与功能设计。

2、德国 SIEMENS

PLM软件(TeamCenter),机械设计软件(UG NX,布线需要"UG/WIRING"),TeamCenter 管理数据与流程,NX 做机械设计,Capital Logic Designer和Siemens Capital UG/WIRING 做逻辑和三维布线,核心以 Xcelerator 平台,整合了产品研发设计(CAD/CAE/PLM/CAM)、工业自动化与控制(SIMATIC 系列)、制造运营管理(MOM)、物联网与工业云(Insights Hub),实现数据与流程端到端集成,形成了全生命周期管理的强闭环,协同与数据一致性高,适合高端复杂产品,但整体拥有成本非常高,一般企业很难承受,实施难度很大,周期长,学习和操作门槛高。

3、法国Dassault Systemes

PLM软件(ENOVIA SmartTeam),机械设计软件(CATIA, Solidworks,布线需要模块Solidworks Routing),电气设计软件为SolidWorks Electrical,与Solidworks无缝的集成,使得电气与电气、电气与机械、机械与机械整合在同一平台共数据源,实现了三位一体的协同化设计,以关系型数据库SQL为数据管理工具,以Office软件界面为主,提供了全面的工具集,使用户能够快速、高效地创建和管理复杂的电气系统,更加适用于以逻辑关系为核心的电气设计,是机电协同的最佳应用工具,使企业在今后更长的一段时间无需再考虑软件的重新整合问题。

4、美国欧特克Autodesk

PLM软件(Productstream),机械设计软件(Inventor, 布线需要"布线模块"),电气设计软件(AutoCAD Electrical).软件多面手,它的软件涉足的面太广了,所以在专业性方面存在很大的不足。

5、德国EPLAN 公司

早期产品为EPLAN 5(不支持亚太语言)和EPLAN 21(支持亚太语言),在2006年统一为EPLAN Electric P8 ,并在同一平台上提供EPLAN Fluid (流体设计),  EPLAN PPE(工艺工程设计), 机柜 3D(Pro Panel),线束(Harnesses),三维软件当时是EPLAN Cabinet. 新推出的ProPanel是Cabinet的继承者(在上世纪90年代,名字叫LogoCAD,后改名为eCabinet,在2006年推出替代产品EPLAN Cabinet,为了统一平台,2010年推出ProPanel, EPLAN Cabinet在2012年10月寿终正寝). EPLAN的强项在大型项目、成套柜、汽车、冶金自动化设备方面,一是设计效率高,二是标准化容易实现,三是于诸多自动化公司的紧密合作,但是他没有自主的3D设计平台,与三维设计软件集成困难,而且针对电气设计方面,它的模块拆分收费,如高级功能(如PLC、3D、报表)需额外付费,整体拥有成本高,学习难度大。

6、法国SEE Electrical

SEE Electrical是一款专业的电气设计软件,具有近似AutoCAD的软件界面和操作方式,内置多种实用设计工具和功能模块。SEE Electrical是一款易学易用的专业级电气工程设计软件,所有功能和命令是专为电气工程而设计,凭借面向图形和面向对象两种设计方式之间的灵活切换帮助工程师大幅提升设计效率。软件自动生成的设计资料,并可直接用于生产、装配、采购和维修。但协同能力弱,多人协同、版本管理、即时同步功能有限,跨其他软件互通一般,与主流机械三维软件集成深度不足,模块也是拆分收费,高级功能需额外付费,整体拥有成本高。

7、日本ZUKEN

E³系列软件在被收购前,是由一家名叫CIM-Team德国公司开发的,现在被日本Zuken公司收购(Zuken长于PCB设计软件)。E³的软件主要有4个模块,E³ Schematic(原理图设计),E³ Cableing(布线), E³ Panel(三维柜体),E³Hydraulics & Pneumatics(流体设计).过去它的强项在汽车线束设计方面,它在设计理念上与EPLAN 非常接近,在电气、流体的设计上也非常方便。其缺点也和EPLAN 差不多,软件贵,入门容易精通难,推广不是很快,中文本地化较差。

8、德国AucoTech

这个公司也是起步比较早的电气设计软件公司,产品有Ruplan, ELCAD(不支持亚太语言),Engineering Base(简称EB).早期其强项在于机车及其线束设计(据说大多数机车厂使用此软件).如今已经发展出了多个软件版本,包括流体设计等。它在设计理念上也与EPLAN 和E³类似,或许都是来自于德国的缘故. 遇到过ELCAD的一些客户,他们都觉得这个软件还是不错的,而现在主推的软件EB简单易学,但是它基于Microsoft Visio平台,依赖SQL Server数据库, 主要以VBA做二次开发,软件的运行效率还有待加强. 它没有自己的三维设计软件,但可以用API与三维软件集成,与此类似还有法国的See Electrical。

9、美国Bentley

是基础设施工程软件提供商,专注于建筑、土木、交通、水利、工厂、岩土等领域的BIM、数字孪生、工程设计、施工与资产运维全生命周期解决方案。这个公司擅长于建筑设计、桥梁设计,P&ID设计等软件开发,有自己的3D设计软件OpenPlant, 电气软件是收购的美国的Promise·e,主要客户是高低压配电行业,适配大型基建、交通场景,基本是与其他软件搭配销售,客户量非常的少。

10、丹麦PcSchematics

主要用于电气原理图的设计,基于Windows平台运行,采用集成化项目管理模式,支持在单文件中管理电气原理图、安装布置图及元件清单等数据,兼容符合 IEC 标准的符号库与主流数据库系统,比较适合中小型项目。没有看到它与三维设计的相关案例。


        上述罗列的这些软件是目前市面上主流的机械三维设计软件和专业电气设计软件,也是企业研发、管理、制造及运营的高效利器。当前企业数字化转型,以维设计软件、智能电气设计软件为前端工具,以 PLM/PDM/MES/ERP 为管理核心,结合数字孪生与工业物联网平台,形成覆盖 “研发 — 工艺 — 生产 — 运维” 的全流程数字化工具体系,实现设计数据贯通、业务流程协同、生产过程可视、资产全生命周期管理。

        综合来看,SILODWORKS Electrical是最具发展前景的专业电气设计软件,与SOLIDWORKS 三维设计软件无缝集成,一套完整的从上到下的电气逻辑与功能设计到制造装配工艺的数据协同,实现电气和机械数据的实时双向交互和自动更新,让电气设计从 “画图工具” 变成 “企业数字化研发平台的一部分”,不但解决了设计环节的多部门协同问题,还解决了制造及工艺的协同问题,实现机电一体化、数据标准化、流程一体化,真正支撑制造企业从传统设计走向全流程数字化。

点赞0 评论 0

发布评论